

.jpg)
.jpg)
.jpg)
.jpg)
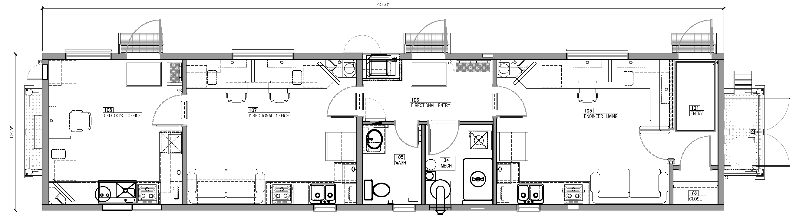
Our Drilling Control Centres provide office space for three different areas to your drilling needs. Areas such as the Directional Drillers office can be accessed through a separate door that includes two desk areas with some cupboard space.
The engineer’s end has it’s own entrance. Each area has a small kitchen that comes complete with fridges, coffee makers and toaster ovens. The Geologist’s end has a larger stainless steel stink, stove, and sample area.
The unit shares a common furnace, air conditioning, and washroom facility.